Skip to content
Home
Projects
Team
About
Contact
Home
Projects
Team
About
Contact
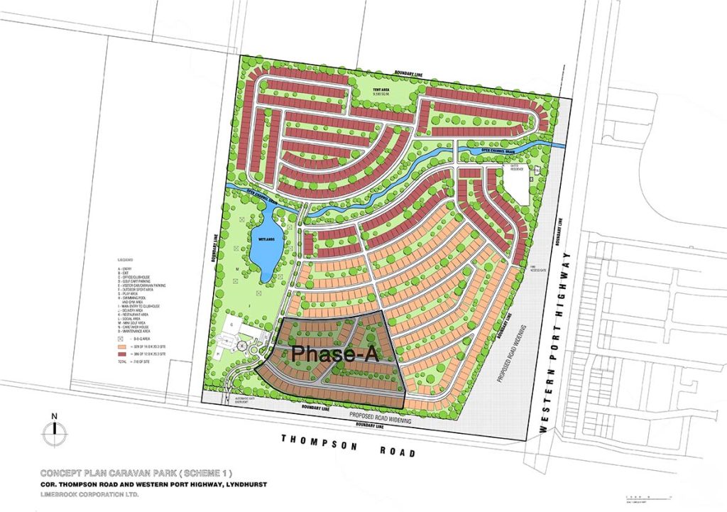
Brookfields Lyndhurst
Team
Limebrook Lyndhurst
Year
2017
Umbrella Company
Limebrook Corporation Ltd
Deliverables
Caravan Park / 55+
Limebrook
Lyndhurst