Skip to main content
Menu
Home
Projects
Team
About
Contact
Press enter to begin your search
Search
Close Search
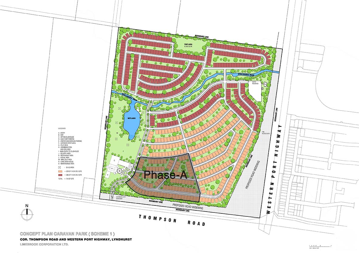
Lyndhurst
Team
Brookfields
Year
2017
Umbrella Company
Deliverables
Land & House Packages
Brookfields Lyndhurst
Leave a Reply
My comment is..
Name
*
Email
*
Website
Save my name, email, and website in this browser for the next time I comment.
Next Project
Goldenview Geelong
Share
Share
Share
Share
Pin
Close Menu
Home
Projects
Team
About
Contact